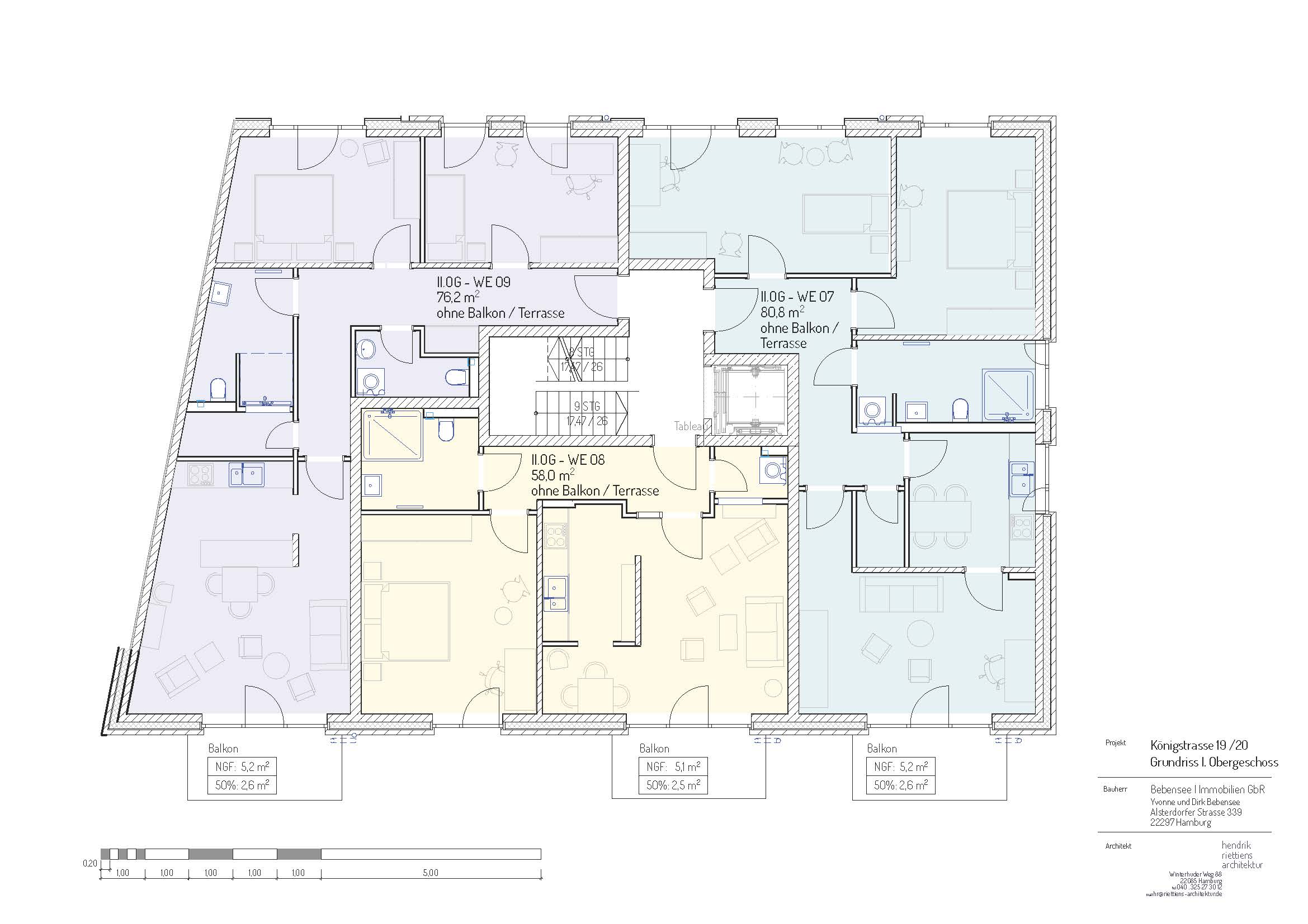
Grundriss 2. OG mit 3 Wohnungen ...

 

 

2. OgDRUCKEN

 

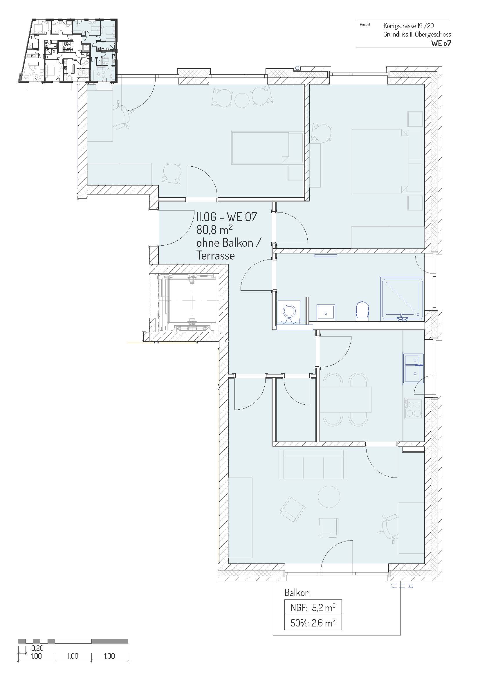
Wohnung 1 rechts

Fernwärme

DRUCKEN

 

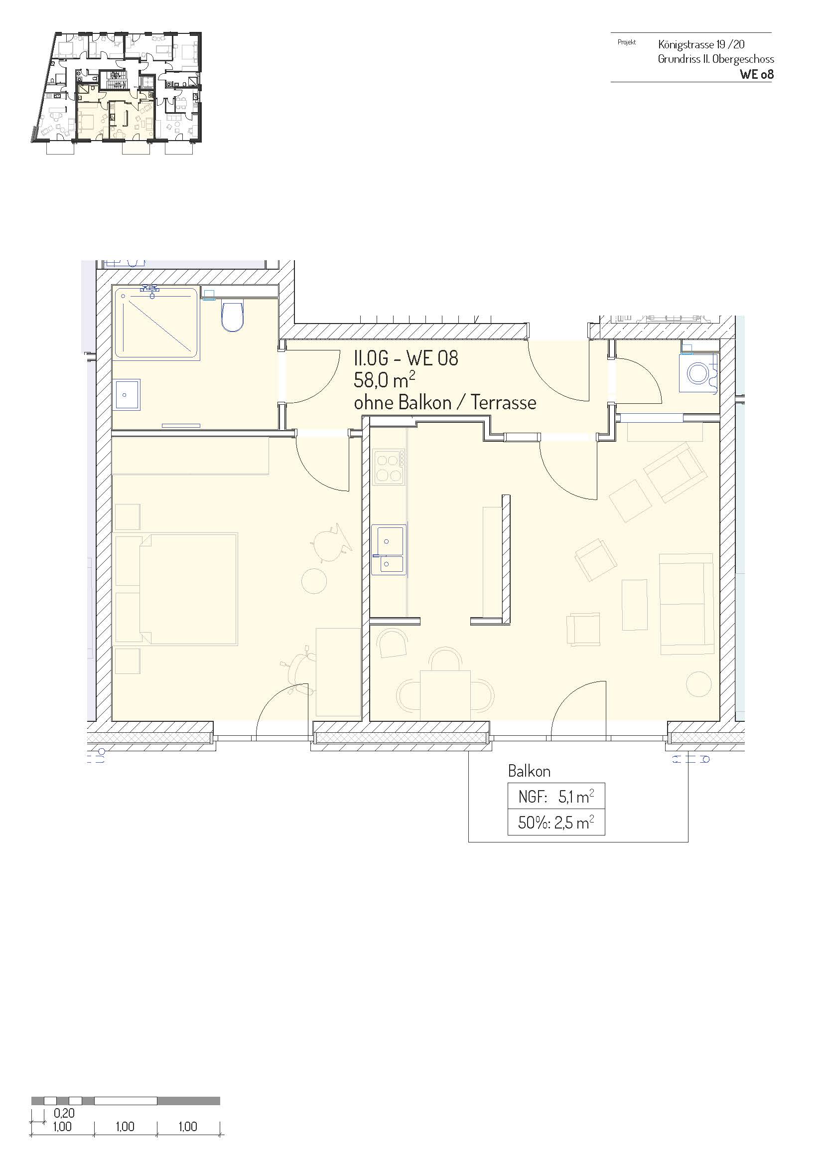
Wohnung 2 Mitte

Fernwärme

DRUCKEN

 

Wohnung 3 links

Fernwärme

DRUCKEN