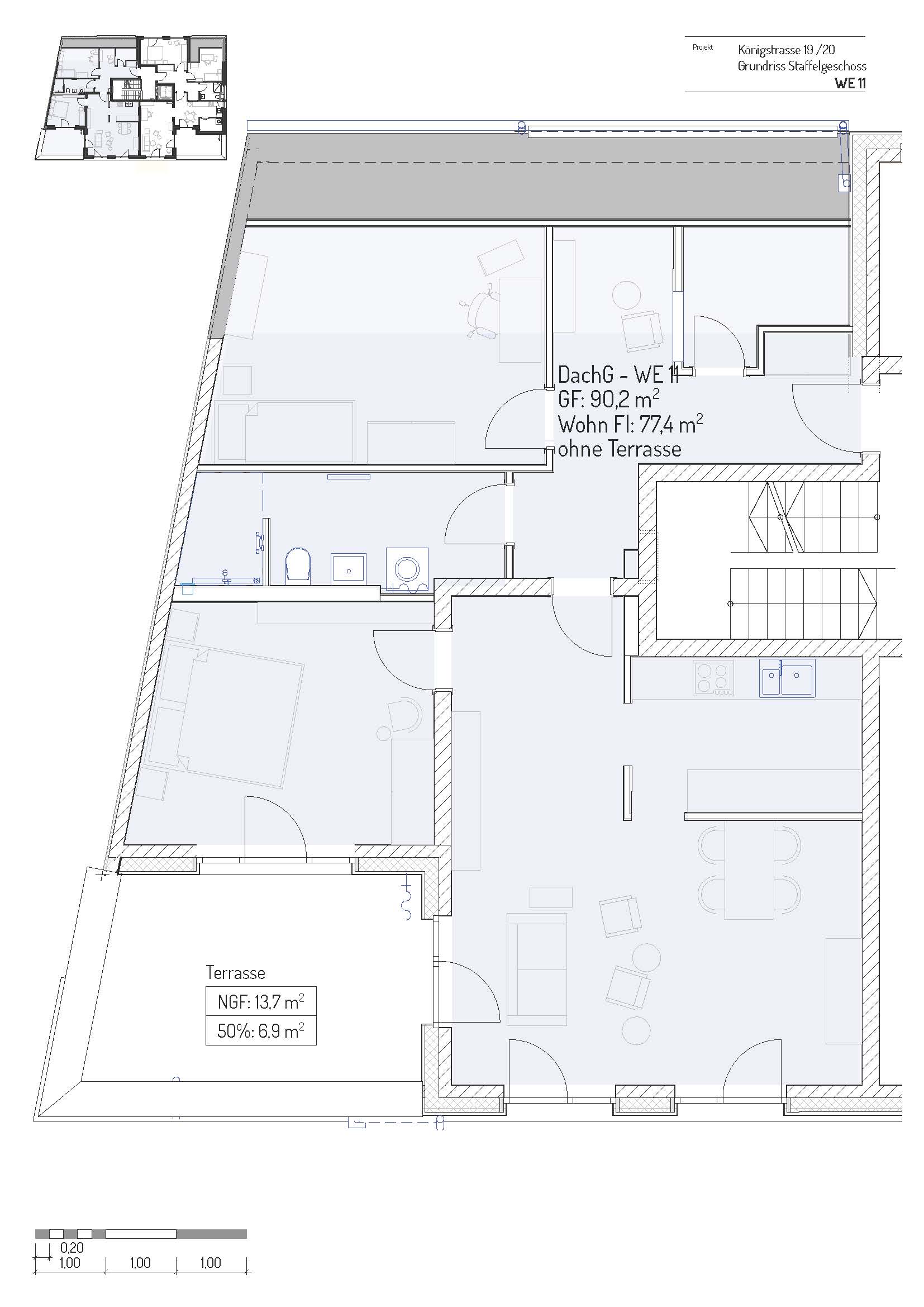
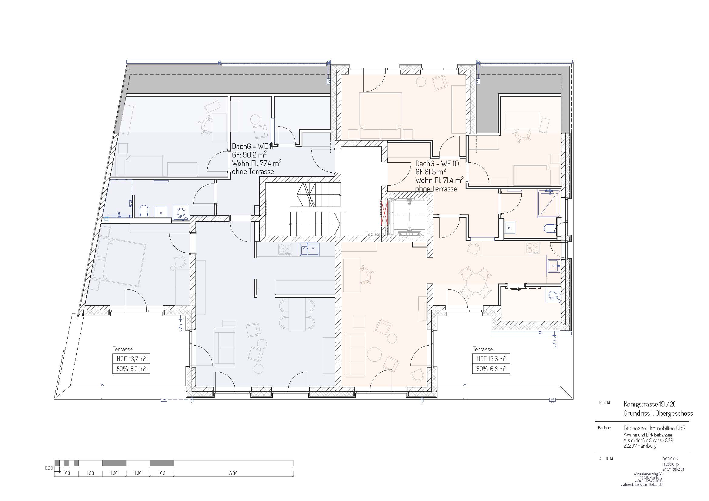
Grundriss Staffelsgeschoss - Penthouse 2 Wohnungen ...

 

staffelgeschoss

DRUCKEN

 

Wohnung 1 rechts

wohnung rechts

Fernwärme

DRUCKEN

 

Wohnung 2 links

Fernwärme

DRUCKEN